The Sence

Semi-detached house
Plots 74 and 75  Barn Owl Close , Fleckney , Leicestershire , LE8 8FB
Ref: TSOS001263
The Shared Ownership Shop are delighted to offer to the market this three-bedroom semi-detached house at Brook Fields, in the popular village of Fleckney. Available on the shared ownership scheme with shares available from 40%.

Price shown is for a 40% share.

These homes are estimated to be build complete at the end of January 2026.

Shared ownership provides an affordable way for you to become a home owner, by buying a share in a new home and paying a subsidised rent on the remaining share. You will then have opportunity to purchase further shares in your home in the future up to 100%, which we call "staircasing", as further shares are purchased the rent reduces accordingly.

The rent for a 40% share is £378.13 per month (Based on a full market value of £275,000). Plus, you will pay an estimated service charge of £31.76 per month.

Location

The historic village of Fleckney is conveniently located between the picturesque town of Market Harborough (10 miles to the South) and the bustling City of Leicester (just over 20 miles to the North).

The village boasts a duck pond, a library, two pubs, local shops and a primary school. This quiet village is also just six miles from the M1and Market Harborough is located on the Midland Mainline giving you access to London in a little over one-hour.

Brook Fields, a Davidsons development, has nature at its heart. With a beautiful wild meadow welcoming you as you arrive, whilst the luscious swathes of green space and the pond ensure Brook Fields ties in perfectly to the immediate rural surroundings of Fleckney.

New Property - Council Tax Band not yet issued

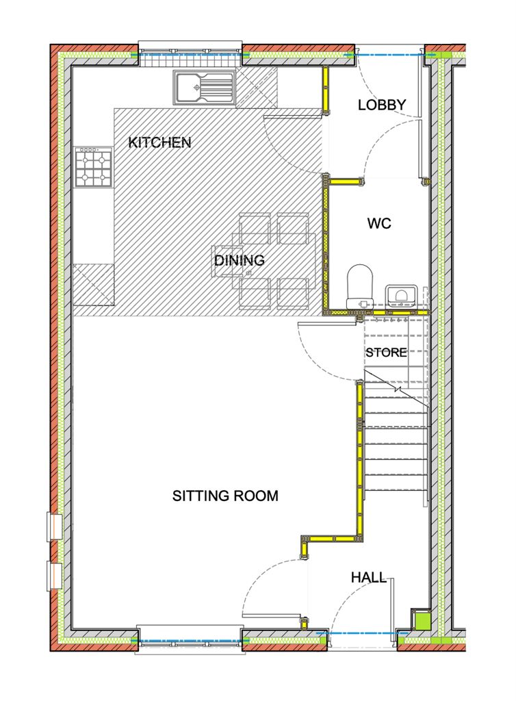
Images show the same house type on an earlier phase of the development and the specification is subject to change. Any dimensions are not to be considered 100% accurate.

These homes are advertised on behalf of Futures Housing Group. Eligibility rules apply.


Dimensions



3 Bedrooms
2 Parking Spaces

1 Bathroom
From 40% Share

MAKE AN ENQUIRY

Related Properties


The Soar
DETAILS
The Dove
DETAILS